完成イメージ
■賃貸で希少なLEED認証取得の環境共生次世代住宅
鈴森villageは、物件オーナーの志によって、グリーンビルディング評価システムであるLEED認証*の一つで、戸建住宅や中低層住宅に適用されるLEED for Homes(リード・フォー・ホームズ)を取得しています。高気密・高断熱はもちろん、エアコンや蛇口も省エネタイプを採用しているため、室内が快適であるうえ、光熱費を抑えることができます。また、植栽には外来種を用いずこの地域に生息する植物を配する、高い塀などをつくらず地域コミュニティーに開くといった配慮を盛り込みました。
注)LEED認証:建物と敷地利用の環境性能を評価する国際認証制度。米国のグリーンビルディング協会(USGBC)が開発、運用しており、世界で最も広く利用されている
■「道路村長さん」こと鈴木左内の遺した土地
プロジェクトに携わる鈴木早苗は、この地で代を重ねた鈴木家の16代目です。曽祖父・鈴木左内は長年にわたり村長を務め、私財を投じて地域の道路を整備したことから、村民から親しみを込めて「道路村長さん」と呼ばれていました。
計画地は代々鈴木家に継承された土地であり、その一部を公園として市民に供用してきました。鈴森villageの完成後も、地域の人々が楽しく通り抜けられる緑あふれる通路を設け、面した1階にはヘアサロンなどのテナントを誘致する予定です。
■駅近の緑豊かな敷地、低層で戸建てのような暮らし
立地は、東武東上線・東京メトロ有楽町線・同副都心線の和光市駅から徒歩5分と至便。約2,600m2に及ぶ敷地に、できる限り巨木を残し、3階建ての低層棟を配しました。住居は南棟1階の4戸はバリアフリー重視のワンフロアタイプ、それ以外はすべて2階・3階のメゾネットタイプになっています。また、広々としたバルコニーやデッキ、ウォークインクローゼット、踊り場など、一般的な賃貸住宅の間取りにはない、ゆとりの空間を実現しました。
敷地内の屋敷林を可能な限り保存した(2022年11月14日撮影)
北側の屋根にはドーマー(屋根窓)を設けてあり、明るい光が室内に注ぐ
ゆったりとした階段の踊り場スペースは、居室のように使用できる
建物取り囲むように配置した植栽には、雨どいからの雨水をしみ込ませる
広々としたデッキから屋敷林が見渡せる
- プロジェクト概要
◇建築家・三浦丈典氏プロフィール

早稲田大学理工学部建築学科卒。ロンドン大学ディプロマコース修了。早稲田大学大学院博士課程満期修了。2001年~2006年ナスカ一級建築士事務所。2006年スターパイロッツ設立。まちづくりや都市経営、公民連携にも積極的に関わる。「道の駅FARMUS木島平」で2015年グッドデザイン金賞(経済産業大臣賞)、2015 JCDデザインアワード銀賞、日本建築美術工芸協会(AACA)賞、中部建築賞、2016年稲門建築会特別功労賞などを受賞
完成予想図
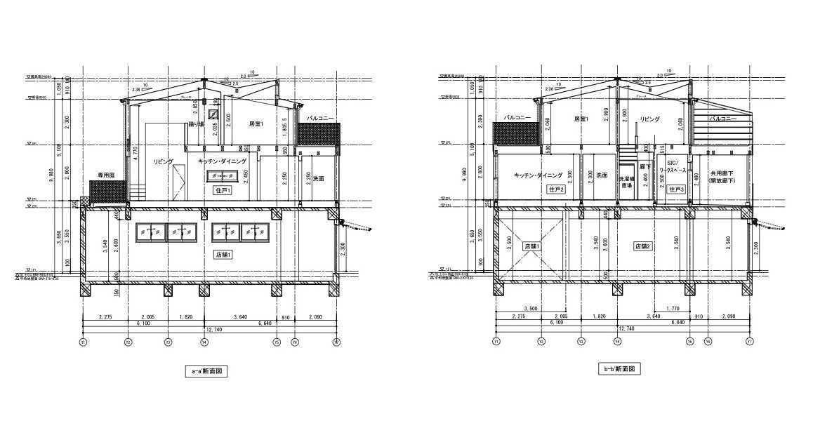
北棟断面図
◇物件概要
所在地:埼玉県和光市本町4410-1ほか
交通:東武東上線・東京メトロ有楽町線・東京メトロ副都心線「和光市」駅徒歩5分
用途:集合住宅+テナント
戸数:住戸26+テナント4
延床面積:2,231.3m2
事業主:株式会社鈴森
設計・監理:設計事務所スターパイロッツ
完成:2023年1月予定
賃料:未定
◇会社概要
社名:株式会社鈴森
代表者:代表取締役 鈴木早苗
本社:埼玉県和光市本町13-28
事業内容:不動産の賃貸・管理、美容院の経営
【物件に関するお問い合わせ】
株式会社鈴森 松尾妙美・田村真紀江
MAIL:suzumorivillage@gmail.com

