

日頃より当社へ関わる皆様へ、改めて心より感謝申し上げます。私たちが掲げております『ITのチカラで世界を豊かにする』為の次なる一歩を歩むにあたり、今回のオフィス拡張と事業拡大に際し、社員一同身が引き締まる思いです。リスキリング教育など事業を通じて日本のIT人材不足の解決や人材教育のDX化に取り組み、一人でも多くの方達をITのチカラで豊かにするため、新たな気持ちで日々精進し、一層の努力を重ねてまいる所存です。変わらぬご指導ご鞭撻のほどお願い申し上げます。
- 新オフィス空間、3つのテーマ
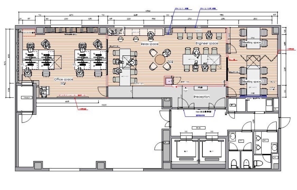
新本社の面積は、旧本社比で約3倍に相当します。今後さらなる組織拡大を見据えた先行投資です。
また、当社は年齢や役職等に関係なく、一人ひとりプロフェッショナルであることを求めるフラットな組織(コミュニティ)であるとともに、自由や多様性をとても大切にしています。デジタル技術の進展で物理的な距離や言語の壁を越えて、さまざまな方達との交流も容易になりました。一方でデジタル技術は、フィルターバブルやエコーチェンバーといった現象を引き起こしコミュニティ間のつながりを断ち、コミュニティの分断を深める方向にも作用しうることだと思います。こうした時代の中でオフィスや働き方を業務効率だけで考えたり、デジタル技術だけに頼るのではなく、一人ひとりが自由に創造性を高められ多様な考えを持ち当社のミッションの実現に向けて歩んでいける組織になることを目指します。
この目的を達成するため、新オフィスのテーマを次の3つに設定いたしました。
1.オープン&フラット
フリーアドレスのオープンなスペースはコミュニケーションを促進させ、一人ひとりにとっても組織にとっても知識を獲得する大切な下地になります。また、年齢や役職に関係なくフラットであることは、組織の成長スピードを加速させます。
2.多様性(ダイバーシティ)
フェイス・トゥ・フェイスの対話から共感が生まれたり意識的に交流を生み出しやすいワークスペースで、各事業間の業務関連度や物理的距離を超えた異属交流を推奨し、組織が活性化する状態を導きます。全社員がそれぞれ双方向のコミュニケーションの頻度を高め、相互協力が行われている状態を目指してまいります。
3.健康(ウェルネス)
健康という枠の中でも当社は特にウェルネスという考え方を意識し大切にしています。ウェルネスとは『輝くように生き生きとしている状態』のことを言います。心身の健康は、生活の質に直結します。心身のどちらか、あるいは両方に不調があれば満足できる活動が難しくなり、仕事面への影響が出る方もいるかもしれません。新オフィスでは働く社員一人ひとりが輝くように生き生きと働ける状態を目指します。社員同士の接点を多目的につくり、所属意識や居場所を感じられる空間であることで個々の価値観の共有や信頼が相互に生まれ、働きがいの土台となる健康を心身ともにサポートします。
- テーマに沿ったエリア設計

フリースペース
フリースペース
会議室&ミーティングルーム
会議室&ミーティングルーム
- グロウコミュニティの見据える未来
まだまだテクノロジーの進化は始まったばかりで今後更に進んでいきます。少子高齢化で人口が減り続けている日本の働き手は不足し、働き方には変化が必要でITのチカラが今後更に必要となってくることは容易に想像できます。弊社は日本のIT人材不足の問題を解決するためにリスキリングや人材教育のDX化に取り組んでいます。一人でも多くのIT人材を輩出し、その仲間とともに『ITのチカラで世界を豊かにする』ためのアクションを起こしていきます。

