石膏ボードでの現場施工が難しい間接照明の鋭角デザインを容易に製作可能にする
大人気モデル【X-J-Arrow9.5(12.5)不燃】は、製品仕様を見直し、強度をそのままに更なる軽量化を実現しました。
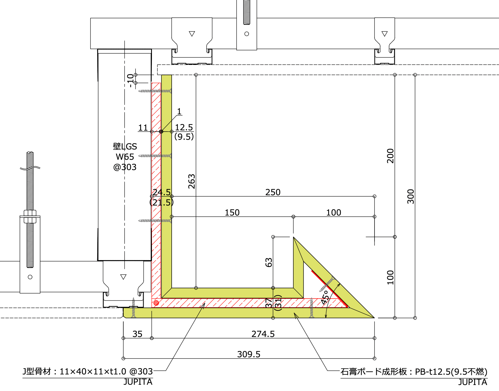
【X-J-Arrow9.5(12.5)不燃】は、石膏ボードを折り曲げ加工したものに、オリジナルのスチール骨材を内蔵した構造になっており、鉄板タイプのものと比較すると強度があるため、照明台座巾200以上の大きい間接照明でご利用いただいております。
この度の製品仕様の見直しでは、先端の折り曲げをコ型のスチール骨材から鉄板に変更することにより
更なる軽量化の実現と、納期の短縮を目指します。
・新商品 新X-J-Arrow9.5(12.5)不燃商品ページ
https://jupita.biz/product/x-jarrow/



出隅形状
出隅形状
入隅形状
入隅形状
■JUPITAについて
創業約50年の内装仕上工事業を本業とする日建スチール株式会社が業界問題の「職人不足」を解消するための新規事業として「石膏ボード成型ユニット製造事業のJUPITA(https://jupita.biz/)」を立ち上げました。
その後対応できる形状が増え多くの設計ニーズにも応える製品となっています。
JUPITAは主に間接照明ユニットを主製品としており、それ以外もデザインルーバーやカーテンボックスなど、内装役物を幅広くカバーしています。
すべての商品は
・オーダーメイドで特殊なデザインやサイズ・角度調整も可能!
・取り付けはビスを打つだけの簡単施工で、1ユニット(910サイズ)で2分程度で完了!
・角を調整する塩ビコーナー材が不要だからパテ処理もジョイントのみで最小限!
など広い特性を持ち、すべての商品が現場の施工性を大きく上げ、工数短縮に貢献する製品となっています。
[参考]JP9.5取り付け動画
https://www.youtube.com/watch?v=ZyMa_SfXRZ0
※JUPITAは全製品同様の施工方法です)
JUPITAは施工性だけが価値ではなく「形状」に関しても軽鉄・ボード施工では不可能な薄さやミニマム形状で製作ができます。
さらに本来のデザインでは、金物や人工木材などの建材を使い対応している45°以下のエッジ形状やR形状であっても、JUPITAユニットなら内装施工時の石膏ボードと同じ厚みで取り合うシームレス化が大きな売りです。
上記の建材採用で、経年の不具合事例で挙がることの多い「現場施工の石膏ボード取合いにおける仕上げのひび割れ」に対し、防止効果を発揮していることが、シームレス化と合わせてJUPITAの付加価値です。
多数の設計スペックインを受けており、大型商業施設、ホテル、オフィス、高級ブランド店舗などのご採用は、約1000件の受注実績があり、高いリピート率も製品の信頼を物語っております。
近年では、建築融合した建築化照明や、リビング、寝室等の居住空間に間接照明の持つ「癒やし・やすらぎ」「高級感の演出」で多くのご採用をいただいております。

■新X-J-Arrow9.5(12.5)不燃について
普通の石膏ボードと同様に扱いやすく、簡単な取付でナイフエッジの間接照明を実現できるユニットです。
内装石膏ボードと異種素材の取り合いで、発生率の高い「ひび割れ」「目違い」等の不具合や意図しない「段差」を石膏ボードの同素材で抑制いたします。
照明台座の総厚みは、使用する石膏ボードで変わります。
・9.5mm使用の場合、31mm
・12.5mm使用の場合、37mm
LED器具設置面のボードを掘り込み隠蔽高さを設けるオプションもございます。
形状寸法は、建築設計・内装デザイナーさまご希望のW×Hの各寸法をmm単位で再現いたします。
エッジ角度は、30°の超鋭角~を可能とし、斜辺の長さも自由にお決めいただけます。
下がり壁部分に排煙等で必要になるボード開口もオプションで承ります。
既存のR形状【X-J Arrow-R9.5(12.5)不燃】とはシームレスに連結が可能です。
この度の製品仕様の見直しでは、先端の折り曲げをコ型のスチール骨材から鉄板に変更することにより
更なる軽量化を実現しました。
断面図
■素材
不燃石膏ボード (t9.5、t12.5)
C型鋼 11×40×11× t1.0
■ユニットサイズ
1ユニット L=910
■価格
お問合せください
■主なお客様
※一部抜粋 敬称略
ゼネコン関係
・大和ハウス工業株式会社
・株式会社大林組
・清水建設株式会社
・大成建設株式会社
・株式会社竹中工務店
・鹿島建設株式会社
・株式会社長谷工コーポレーション
・戸田建設株式会社
他
テナント工事業者
・株式会社乃村工藝社
・株式会社丹青社
・株式会社スペース
・株式会社ラックランド
・高島屋スペースクリエイツ株式会社
他
■お問い合わせ先
会社名:日建スチール株式会社(https://nikken-st.co.jp/)
事業責任者:三輪 賢二
公式サイト :https://jupita.biz/
※問い合わせフォームございます
TEL:03-5875-7702

