| ○JR東日本グループは、東京の国際競争力向上と国内外からの多様な人々の交流・流動の創出に向け、「高輪ゲートウェイシティ(仮称)」を中心に、浜松町駅から大井町駅に至る「東京南エリア」のまちづくりを進めています。その重要な柱のひとつとなる、「大井町駅周辺広町地区開発(仮称)」の本体工事に着手します。 ○本開発では、品川区と連携した施設整備や駅の改良により「大井町エリア全体の賑わいと回遊性の向上につながるまちづくり」「災害に強く、環境に配慮したまちづくり」を進めるとともに、多様な用途や空間活用により「地域の皆さまにとっての質の高いくらしづくり」を目指します。 ○JR東日本の開発街区は、2023年4月本体工事着手、2025年度末開業の予定です。 |
1.本開発の位置づけ
1)東京南エリアのまちづくり
JR東日本グループはグループ経営ビジョン「変革2027」の実現に向け、浜松町駅から大井町駅に至る「東京南エリア」のまちづくりを進めています。これは、羽田空港の国際化やリニア中央新幹線の整備などによる交通インフラの充実・進化を見据え、「高輪ゲートウェイシティ(仮称)」を中心に、各駅でパートナーや地域の皆さまと連携しながらまちづくりを進めることで、東京の国際競争力向上と国内外からの多様な人々の交流・流動の創出を図り、JR東日本グループの収益基盤を強化するものです。その重要な柱のひとつとなる「大井町駅周辺広町地区開発(仮称)」に本格着手します。
2)大井町のまちづくり
大井町駅周辺広町地区開発(仮称)は、品川区が策定した「大井町駅周辺地域まちづくり方針(2020年)」において、大井町エリアのまちづくりを牽引する役割を担う開発として位置づけられ、歩行者ネットワーク整備や防災分野などで品川区や周辺地域・事業者の方々と連携して進めるまちづくりです。JR東日本は大規模複合施設を、品川区は新区庁舎などを整備し、共に大井町エリア全体の新たな賑わい創出を目指します。
図1 JR東日本 開発街区のイメージ(南側上空より計画地を望む)
2.賑わいと回遊性、防災や環境性能の向上
品川区が整備する街区と一体で施設整備や機能の配置を行うことで、大井町エリア全体の賑わいと回遊性の向上につなげるとともに、災害に強く環境に配慮したまちづくりを進めます。
1)歩行者ネットワークと広場の整備
駅としながわ中央公園方面のエリアをつなぎ、周辺の高低差に対応した重層的な歩行者デッキを整備し、東西軸のアクセス性を高め、開発街区と南側のエリアをつなぐ東急大井町線高架下に新設する通路とも接続し、まちの回遊性を高めます。また、併せて賑わいと交流を生み出す場として複数の広場を整備します。
図2 周辺の高低差に対応した歩行者ネットワークの整備
2)大井町駅改良と交通広場整備(参考①参照)
大井町駅東口駅舎の改良を行い、開発街区に直結する改札や出口の新設、コンコースの拡張などを行います。また駅の北側に、バリアフリーでアクセスし、バスやタクシーなどが利用可能な交通広場を整備します。

3)地域の防災力の強化
品川区(新区庁舎やしながわ中央公園)と連携して地域の防災力強化を図ります。JR東日本が開発する街区では、災害時には広域避難場所となる約4,600㎡の広場を整備するとともに、建物内には帰宅困難になった方々約3,000人を受け入れるスペースを整備します。
4)環境配慮のまちづくり
地域冷暖房施設(DHC)の導入などの環境配慮施策により、一般的なビルに比べてCO2排出量を約50%削減するとともに、環境価値の調達によりカーボン・オフセットを行うことでCO2排出量実質ゼロを目指します。また、CASBEE(建築環境総合性能評価システム)Sランクの取得および東京都のトップレベル事業所の認定を目指します。
3.大井町らしい豊かなくらしの実現
本計画では、歴史と発展性を合わせ持つ大井町の個性を活かし、車両基地上に広がる空やその向こうに見える都心方面の眺望なども取り入れた、豊かな余暇の時間と質の高いくらしづくりを実現する、職住近接の利便性の高いまちづくりを進めます。
図5 開発街区の断面イメージ
1)住む人・働く人・訪れる人のくらしを豊かに支えるさまざまな用途(参考②参照)
駅直結の利便性と開放的な空間を感じる複合施設として、1フロアあたりの賃貸面積が約5,000㎡となる東京南エリア最大規模のオフィス、デッキにより立体的に繋がり行き交う人々の賑わいを感じるアウトモール型の商業、地域に開かれたラウンジやルーフトップバーが新しい大井町の魅力となるホテル、立地と眺望、利便性を兼ね備えた高品質な賃貸住宅を整備します。
図6 住む人・働く人・訪れる人で賑わうアウトモール(4階)
2)パブリックスペース(参考③参照)
歩行者ネットワークと複数の広場からなるパブリックスペースを整備し、地域と連携したイベントの開催や、地域の皆さまの憩いや交流の場所としてご活用いただくことを目指します。
図7 賑わいと憩いの場となる約4,600㎡の広場(1階)
3)鉄道との連携
この地で100年以上続く鉄道のメンテナンス拠点を身近に感じていただけるよう、整列する鉄道車両を一望できるデッキの整備や、工場見学のイベントとの連携などを行います。
図8 ホテルや賃貸住宅から見渡せる夜景と車両基地
※掲載の画像はイメージであり、今後変更となる場合があります。
【参考①】
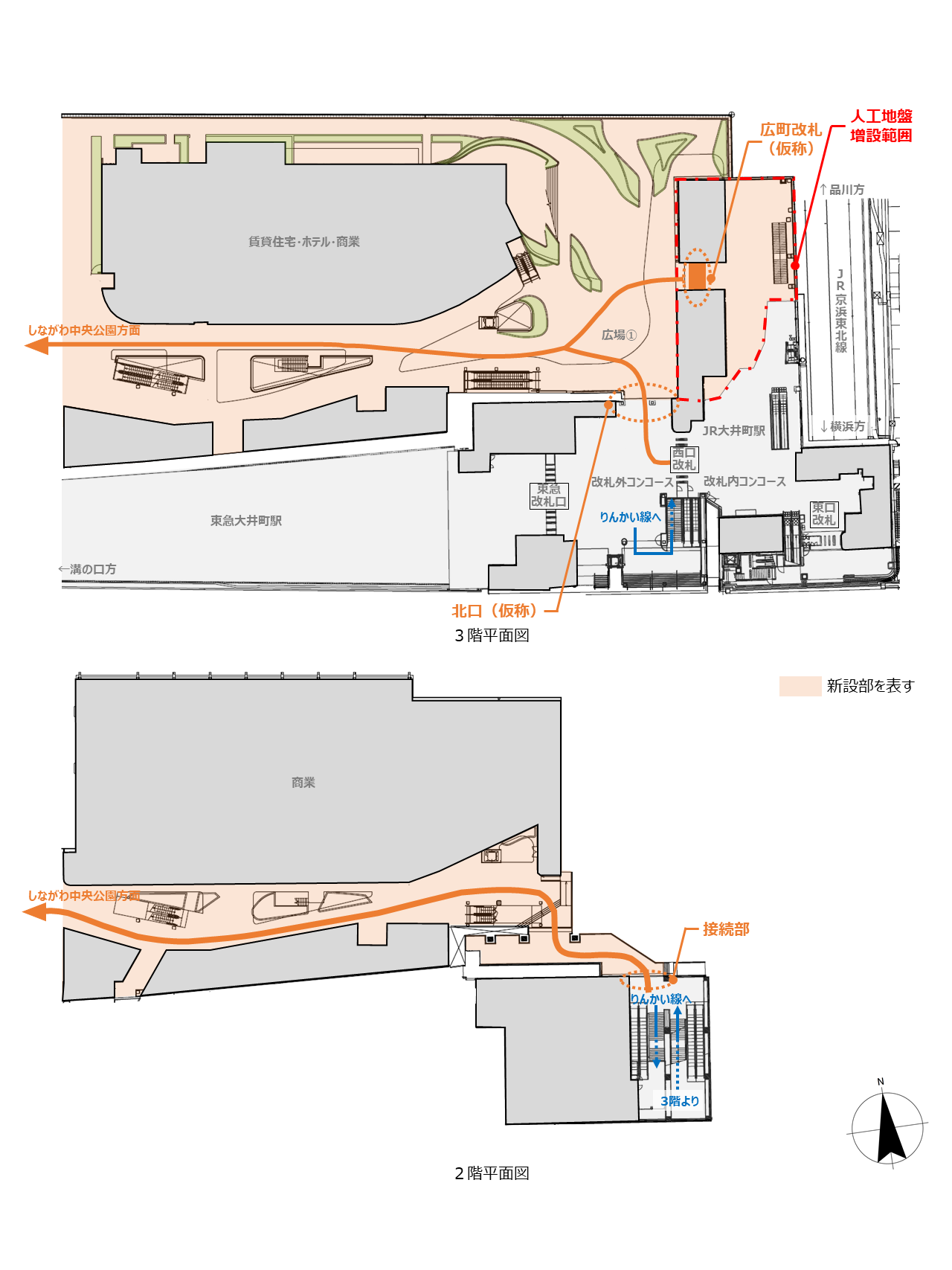
<大井町駅東口駅舎の改良について>
大井町駅東口駅舎について、人工地盤の増設によるコンコース拡張と既存施設の改良により、本計画地に直結する広町改札(仮称)や北口(仮称)を新設します。また、広町改札(仮称)前には広場を整備することにより、お客さまが待合せなどにご利用いただける滞留空間を拡張します。りんかい線から計画地へのアクセス通路や、JR線ホームについても改良を行うことで、利便性の向上と混雑の緩和を図ります。

【参考②】
<住む人・働く人・訪れる人のくらしを豊かに支えるさまざまな用途について>
1)オフィス
高層部には基準階貸室面積約5,000㎡の大規模・高品質なオフィスを、低層部には地域の皆さまの新しい働き方を支援するオフィスサポート機能を整備します。

2)商業
歩行者ネットワークに面して開放的なアウトモール型の商業施設を展開します。シネマコンプレックスのほか、個性豊かなテナント構成により生活に彩りを与え、気持ちを豊かにする空間を目指します。

3)ホテル
地域の皆さまにもご利用頂きやすいレストランやラウンジを備えた、まちに開かれたホテルを展開します。屋上には都心の夜景や隣接する車両基地の壮観な車列も一望できるルーフトップバーを設けます。

4)賃貸住宅
都心の駅直結複合開発に住まう利便性と高層階の眺望を兼ね備えた、高品質な賃貸住宅を提供します。共用部には、自然を感じられる開放的なエントランスやテレワークに対応したワークラウンジを設けます。

【参考③】
<地域の皆さまの憩いや交流の場所としてご活用いただくパブリックスペース>
1)広場➀
新設する改札の前に、待合せなどにご利用いただける、まちの玄関口となる広場を整備します。
広場とつながるデッキからは整列する鉄道車両を一望することができます。
広場① 駅直結の待合せスペースとして利用される広場のイメージ
2)広場➁
歩行者ネットワークの中央に位置し、交通広場やしながわ中央公園方面へ向かう人々、オフィス、ホテル、賃貸住宅、商業施設をご利用される方々が行き交い、本施設の賑わいの中心となる広場となります。
広場② 重層的な歩行者ネットワークと一体となって賑わう広場のイメージ
3)広場③
緑豊かで広々とした約4,600㎡の広場を整備します。イベントや地域活動などを通じて憩いの空間となり、災害時には広域避難場所としても機能する、本開発の象徴的な広場となります。
広場③ 休日などに憩いの場として利用される広場のイメージ
【参考④】
<JR東日本が開発する街区の概要>
※今後の検討により変更となる可能性があります。


