1Fから2Fデッキを見る
■省エネ性能と快適性を備えた鈴森village
鈴森villageの最大の特徴は、LEED for Homesの基準に準拠した計画・設計・施工がなされていることです。LEEDはLeadership in Energy and Environmental Design(リーダーシップ・イン・エナジー・アンド・エンバイロンメンタル・デザイン)の略で、米国グリーンビルディング協会(USGBC)が開発・運用している国際認証制度。環境的視点から、敷地、水、エネルギー、資材、室内環境などを評価します。
鈴森villageは、高断熱・高気密の建物に、高効率エアコンや節水トイレ・蛇口・シャワーといった省エネ設備を備え、エネルギーロスの極めて少ない仕様となっています。このため入居者は、同等の広さを持つ住宅と比べて光熱費が抑えられるうえ、夏涼しく冬暖かい快適な暮らしを享受できます。また、LEEDの要件である「立地や交通利便性」「敷地内の豊かな緑を在来種や適合種(地域の環境に適した種類の植物)で構成していること」「植栽の灌水に雨水を利用し、節水に配慮していること」などにも対応しています。
全景
villageの中央付近
village内の通路
そのほか、設計を担当した建築家・三浦丈典氏(一級建築士事務所 スターパイロッツ代表)により、シンク付きのアウターリビングやバルコニー、リモートワークにも使える広い踊り場や玄関ホールなど、アフターコロナのライフスタイルを想定した多目的スペースも盛り込まれています。
シンク付きのアウターリビング
部屋のように使える広々とした踊り場
■LEEDに準拠するための設計・施工上の工夫
LEED認証のうち、住宅を対象とするLEED for Homesを取得した物件は、わが国ではほとんどなく、鈴森villageが認証を取得すれば国内4例目となる可能性があります。
鈴森villageの建設にあたっては、計画段階からLEEDのコンサルティングを手掛ける株式会社ヴォンエルフ(所在地:東京都千代田区、代表取締役社長:平松宏城)と綿密に連携をとり、LEED for Homesの基準に準拠して進めてきました。
特筆すべき工夫点は、以下のとおりです。
- 植栽をグランドレベルに加えて建物壁面(共用部)にも立体的に配置
- 建物壁面の植栽に雨水が自然流下でしみ渡る「雨水潅水システム」を導入
- 既存の屋敷林を極力残し、工事中は根をていねいに避けて掘削
- エネルギー効率の面で不利となる「変化に富んだ間取り」を、エネルギー性能を確保しつつ実現
■今後のスケジュール、展望
米国よりレイター(評価者)を招いて1月27日に最終審査を終え、現在、LEED for Homesの取得へ向けて審査機関への申請の準備をしています。
LEEDレイターによる最終審査の様子
また現在、図面資料からエネルギー消費をシミュレーションし、一般的な仕様との比較を行っています。LEEDは環境教育の現場での注目も高まりつつあり、鈴森villageでも高校生や大学生の自主学習グループからの見学希望に対応しました(入居後の見学は予定しておりません)。
三浦氏は「入居者に『長く住みたい』と思ってもらえる賃貸住宅になったと思う」と話しています。
- プロジェクト概要
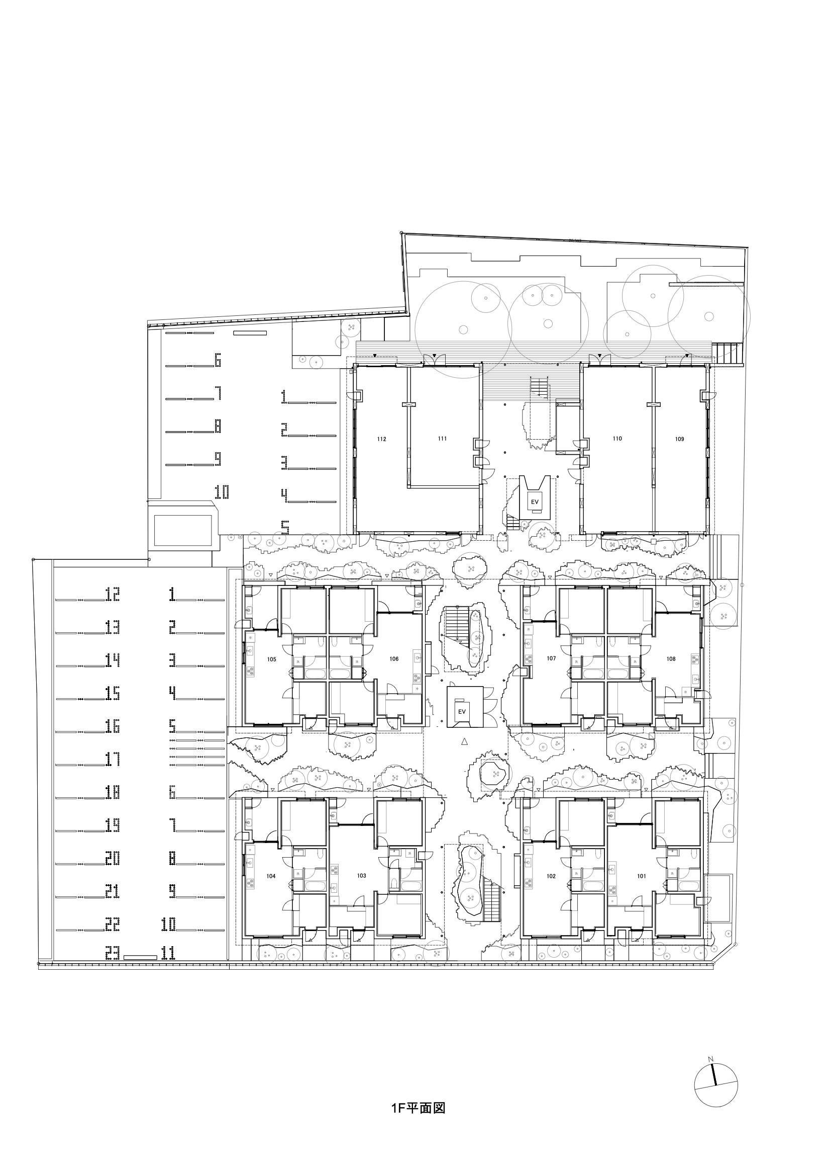
◇平面図
鈴森village全体の1階平面図
1階RC造1LDKの例
2・3階木造メゾネット2LDKの例
住戸配置のサイン
◇物件概要
所在地:埼玉県和光市本町4410-1ほか
交通:東武東上線・東京メトロ有楽町線・東京メトロ副都心線「和光市」駅徒歩5分
用途:集合住宅+テナント
戸数:住戸26+テナント4
延床面積:2,231.3m2
事業主体:株式会社鈴森
設計・監理:一級建築士事務所 スターパイロッツ
完成:2023年2月
賃料:17万円~21万8000円(いずれも共益費込)
◇会社概要
社名:株式会社鈴森
代表者:代表取締役 鈴木早苗
本社:埼玉県和光市本町13-28
事業内容:不動産の賃貸・管理、美容院の経営
◇参考資料
<2022年11月28日配信プレスリリース>
https://prtimes.jp/a/?f=d112444-20230204-5e90e04a53b0d9baa4ad77410aed5c19.pdf
<note連載>
間もなく完成! 緑豊かで一年中快適な住まい #1 環境共生型賃貸住宅「鈴森village」
https://note.com/press_svpj2022/n/n321a907a2680
本当にいい、住み続けたい賃貸住宅とは?〈前編〉 #2環境共生型賃貸住宅「鈴森village」
https://note.com/press_svpj2022/n/n4c8e917ce8e7
本当にいい、住み続けたい賃貸住宅とは?〈後編〉 #3環境共生型賃貸住宅「鈴森village」
https://note.com/press_svpj2022/n/n745eed26df61
私たちがLEED認証にこだわる理由とその魅力〈前編〉#4環境共生型賃貸住宅「鈴森village」
https://note.com/press_svpj2022/n/n12ca44b7329c
【物件に関するお問い合わせ】
リゾン和光支店
wako@lizon.co.jp
https://lizon.co.jp/store_guide/
【本件に関する報道関係のお問い合せ】
鈴森village広報チーム
press.svpj2022@gmail.com

